- 木の骨組みと光が織り成す、
⾃然との調和空間
- 北海道・札幌市を拠点に活動する設計事務所「ATELIER FUALI」が提案するのは、
穏やかな自然光が室内を包み、空間の奥行きを感じさせる心地よい住まい。
木の表情を活かしながら左官の白壁と調和させることで、
自然素材が持つやさしさと丈夫さを日常に溶け込む心地よいデザインを実現しています。
一つの家の中に多彩な居場所をつくりだす、そんな「ATELIER FUALI」の設計の深みを感じていただけます。
Pickup

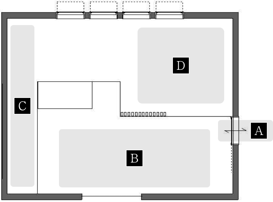
A 迎
- 和のしつらえが迎える、静けさの入口
- 自然と人をつなぐ家の“はじまり”を、素材と意匠によって丁寧に表現。玄関扉には、職人の手によって造作された格子戸を採用しました。和の意匠をベースに、光と影のゆらぎが生まれる設計で、訪れる人に静けさと奥ゆかしさを感じさせてくれます。
繊細なデザインが、家の入口からしっかりと息づいています。

B 苑
- 素材と余白がつくる、風景のような外構
- 住まいと自然をやわらかくつなぐ外構空間。
ただの通り道ではなく、“もうひとつの居場所”として丁寧に設計された風景です。広がるタイル敷きの外構は、空間全体に落ち着いた印象を与えるデザイン。その中に静かに据えられた札幌軟石の沓脱石、十分な広さを持たせたアプローチ空間は、通り道としてだけではなく、光を楽しみながら立ち止まれる屋外の居場所としても機能します。

C 坐
- 静けさに包まれる、やすらぎの余白
- 縁側は、光と素材がやさしく溶け合う、現代の暮らしに寄り添う“余白”の空間です。
床には、やわらかな木目と素足の心地よさが魅力の無垢タモ材を採用。背面には間接照明をさりげなく仕込み、柔らかな光が静かに空間を包み込みます。天井近くには障子の窓を設置、柔らかい光を通す障子は、空間に優しい明るさをもたらし和の意匠をモダンに取り入れた、日本の美意識が息づいたしつらえとなっています。

D 場
- 内と外をつなぐ、深呼吸できる間の空間
- 広縁は、ただの通路ではなく、空と庭と部屋をつなぐ、もうひとつの“暮らしの場”です。掘りごたつがしつらえられており、座って外を眺めながら過ごすことができる“居場所”。さらに外構とのあいだには、細部までこだわりつくされた船底加工を施した集成材を設置。角のないやわらかなラインが空間に流れを生み、境界を視覚的にも柔らかくつないでいます。暮らしの質をさりげなく底上げしてくれる設計の余白が、ここにも息づいています。
Reservation 来場予約
ショールームの見学をご希望の方は、ご予約をお願いいたします。